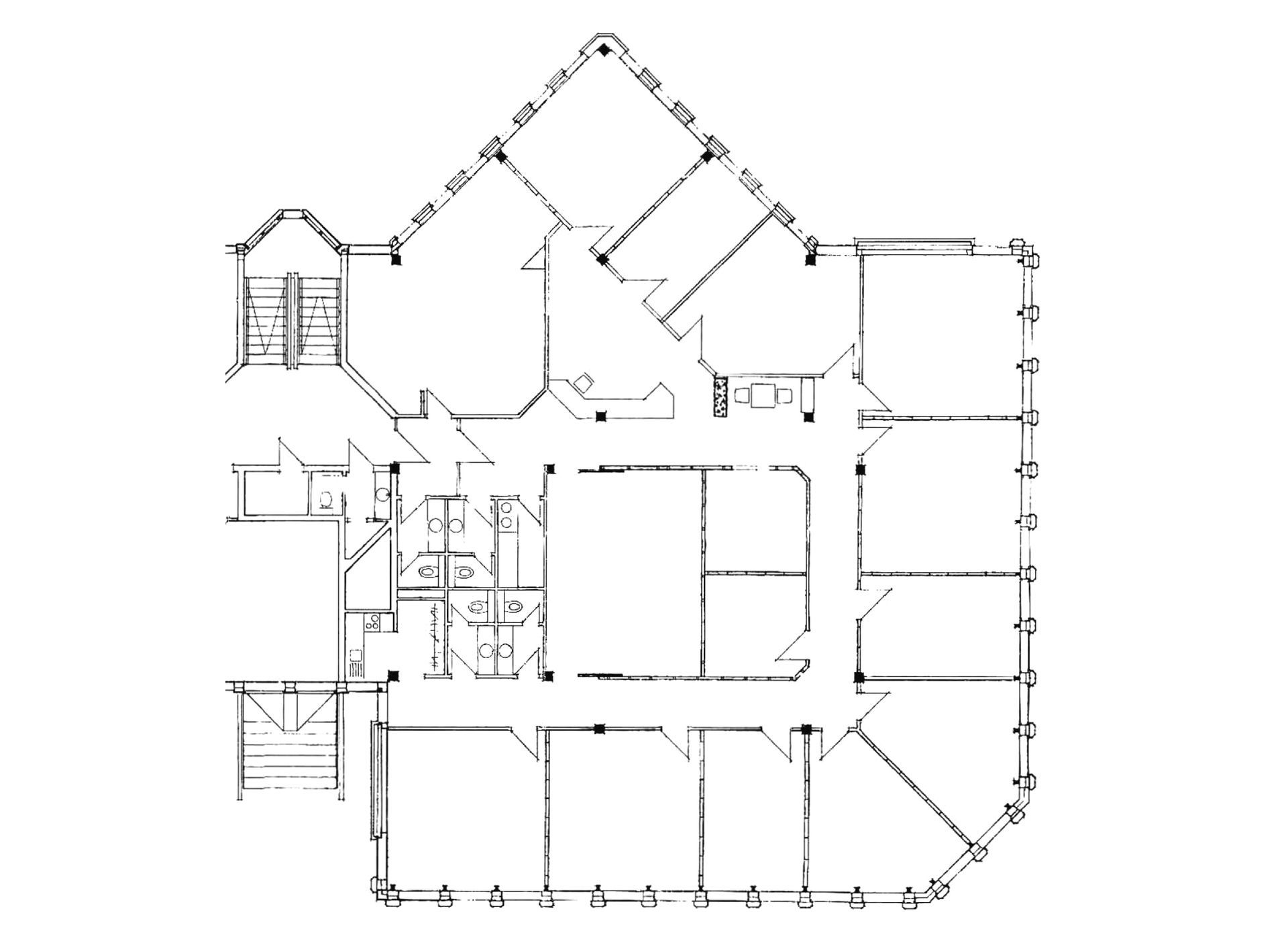
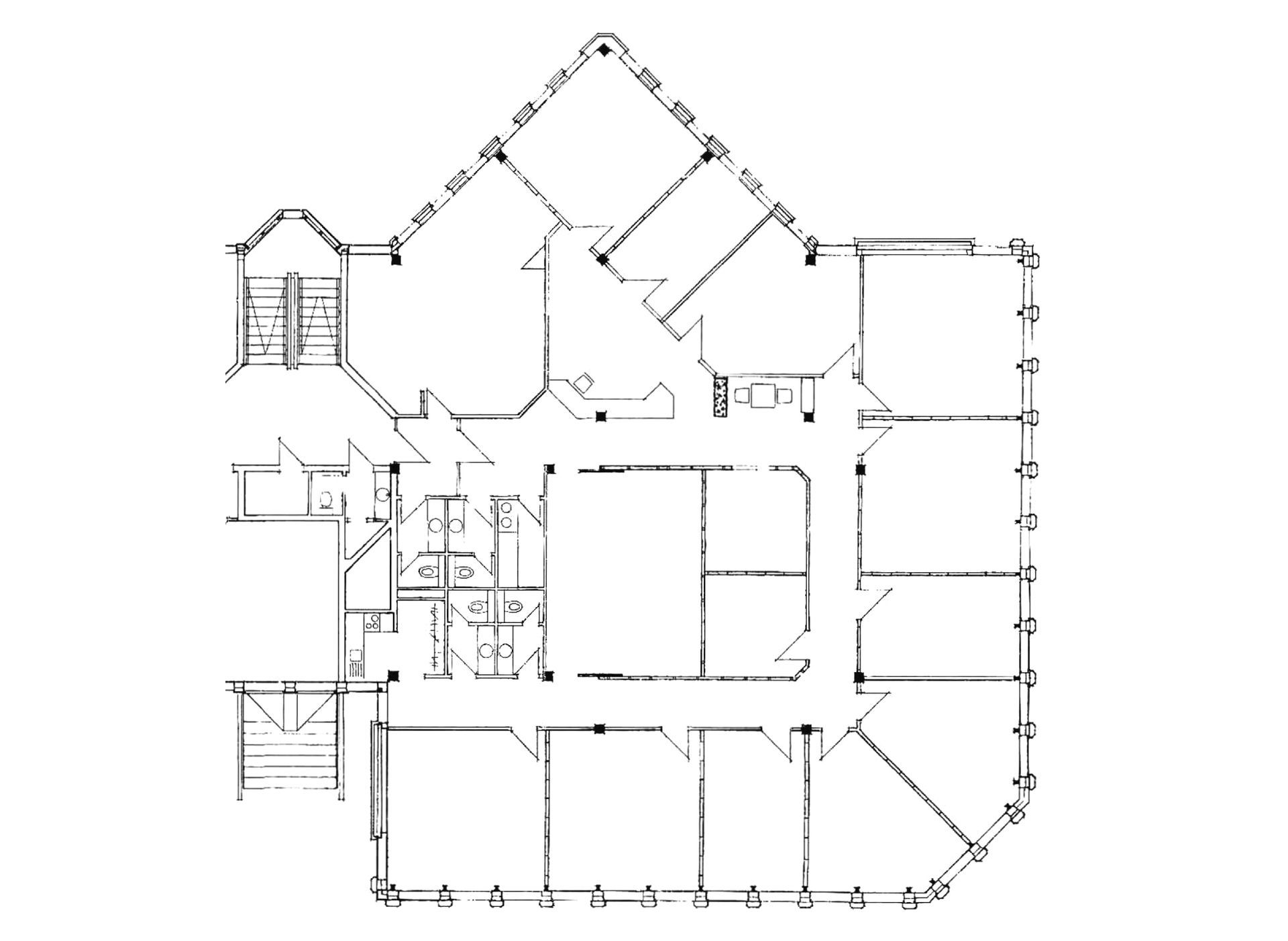
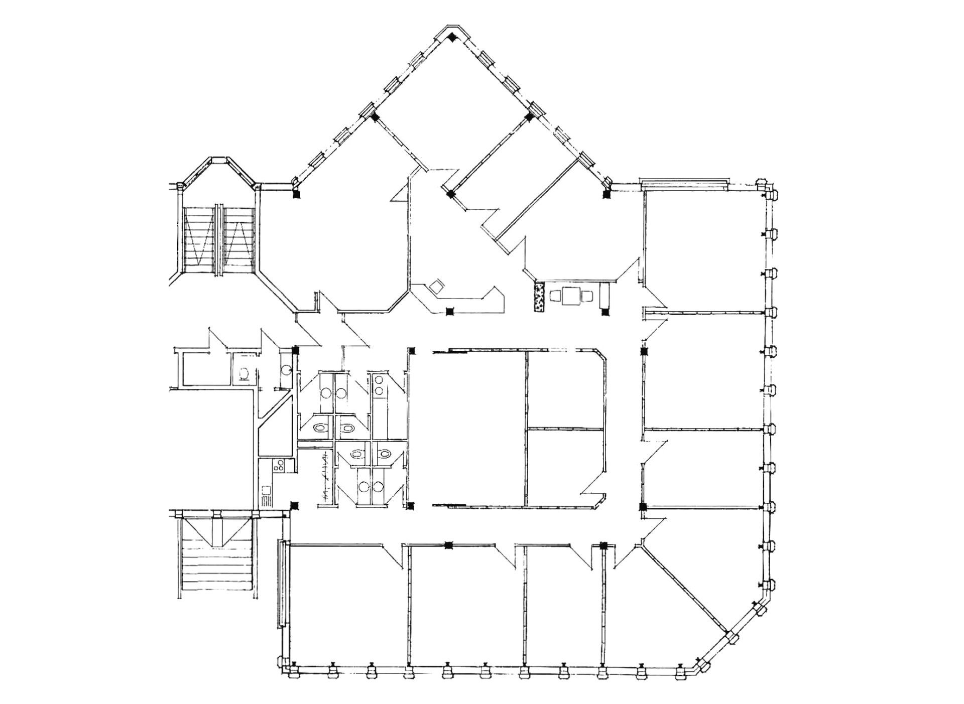
Freie Bürofläche Haus 33
1. Obergeschoss
Das Hauptgebäude (Haus 33)
bietet als zweigeschossiges Gebäude von seiner konstruktiven Struktur her eine Open-Space-Fläche an, die sich entweder als Raumkontinuum für Gruppen- oder Teambüros eignet, sich aber auch in Einzelbüros jeder Größe einteilen lässt. Der zentrale Kern liefert jeweils die notwendige Infrastruktur.






Grundriss Haus 33 - die Gesamtfläche beträgt 433,60 qm

